Willkommen in Ihrem neuen Zuhause! Dieses einmalige und sehr gepflegte Doppeleinfamilienhaus bietet Ihnen auf großzügigen 140 m² Wohnfläche und einem insgesamt 362 m² großen Grundstück ausreichend Platz für Ihre Familie. Hier handelt es sich um keine typische Doppelhaushälfte, da hier nicht die Gebäude, sondern die Garagen aneinander gebaut sind, jedes Haus für sich hat ein eigenens Einfamilienhaus Erscheinungsbild. Diese Immobilie überzeugt mit ihren hellen, lichtdurchfluteten Räumen.
Beim Betreten des Hauses, empfängt Sie als Auftakt eine helle Galerie, mit Blick bis auf die Terrasse, schon hier spüren Sie den besonderen Charakter dieser Immobilie.
Die große Fensterfront im Wohn-Essbereich bietet direktem Zugang zur überdachten Terrasse, ideal nach Süd-Westen ausgerichtet, von hier aus erschließt sich auch direkt der Garten.
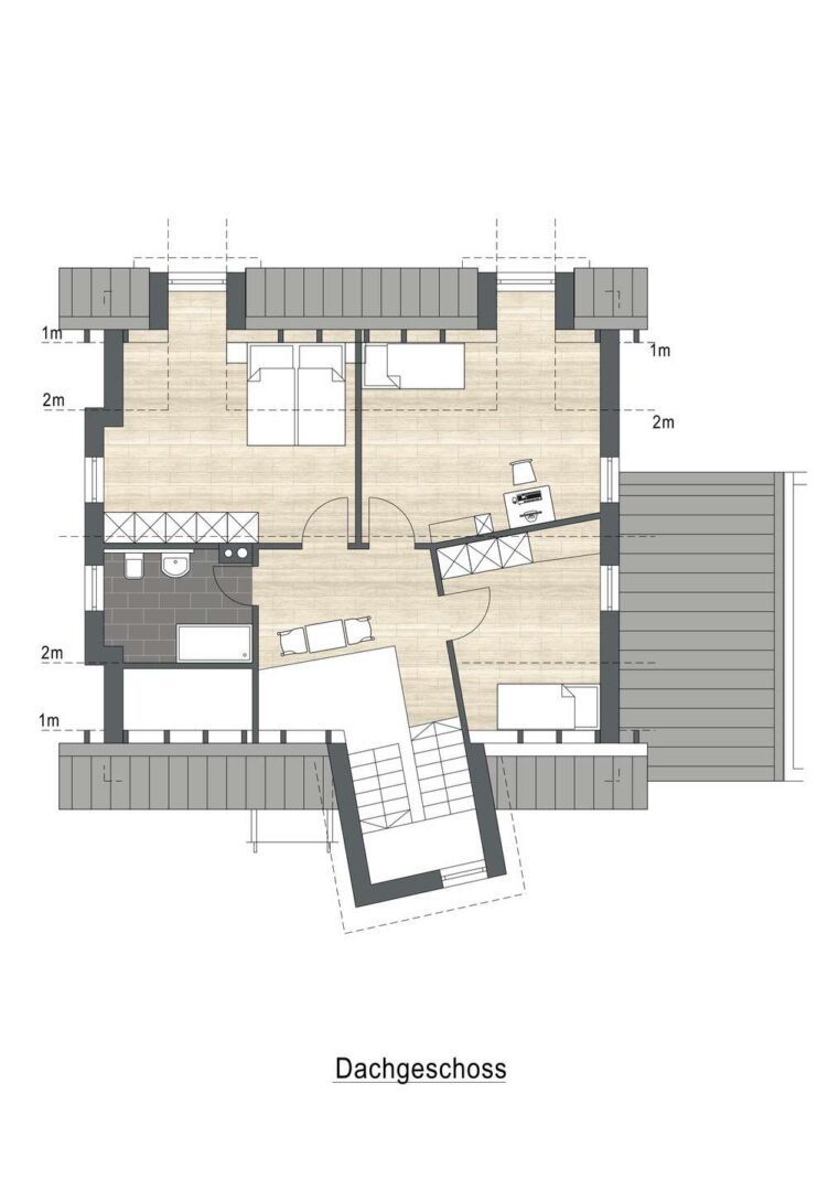
Das Haus erstreckt sich über zwei Etagen und bietet insgesamt 6 helle und freundliche Zimmer, die individuell gestaltet werden können.
Zwei moderne Bäder sorgen für Komfort, im Dachgeschoss ist das Tageslicht Bad mit einer Dusche, Waschbecken und WC ausgestattet. Im Keller ist ein zusätzliches Bad, ebenso mit Dusche, Waschbecken und WC nachträglich eingebaut worden. Ein Gäste-WC ist ebenfalls im EG vorhanden und ergänzt die praktische Ausstattung.
Die gehobene Ausstattung umfasst eine stilvolle Einbauküche, die keine Wünsche offenlässt. Genießen Sie gemütliche Abende am Kamin im Wohn- Essbereich oder entspannen Sie auf der Terrasse, die genügend Platz für Ihre eigenen Ideen bietet.
Zusätzliche Annehmlichkeiten wie eine Garage, ein Keller und Abstellräume bieten Ihnen viel Stauraum und Flexibilität. Die Zentralheizung sorgt für wohlige Wärme in den kalten Monaten.
Lassen Sie sich diese Gelegenheit nicht entgehen! Überzeugen Sie sich selbst von diesem attraktiven Angebot und vereinbaren Sie noch heute einen Besichtigungstermin. Wir freuen uns auf Ihre Anfrage!
























