Willkommen in Ihrem neuen Zuhause! Dieses neuwertige Einfamilienhaus befindet sich in einer familienfreundlichen Nachbarschaft in Westerheim. Mit einer großzügigen Wohnfläche von 134 m² und einem Grundstück von 396 m² bietet es Ihnen ausreichend Platz für Ihre Familie.
**Details im Überblick:**
- **Zimmer:** 4 ,5
- **Bäder:** 2 moderne Badezimmer mit Tageslicht
- **Etagen:** 2
- **Ausstattung:** gehoben, ideal für anspruchsvolle Käufer
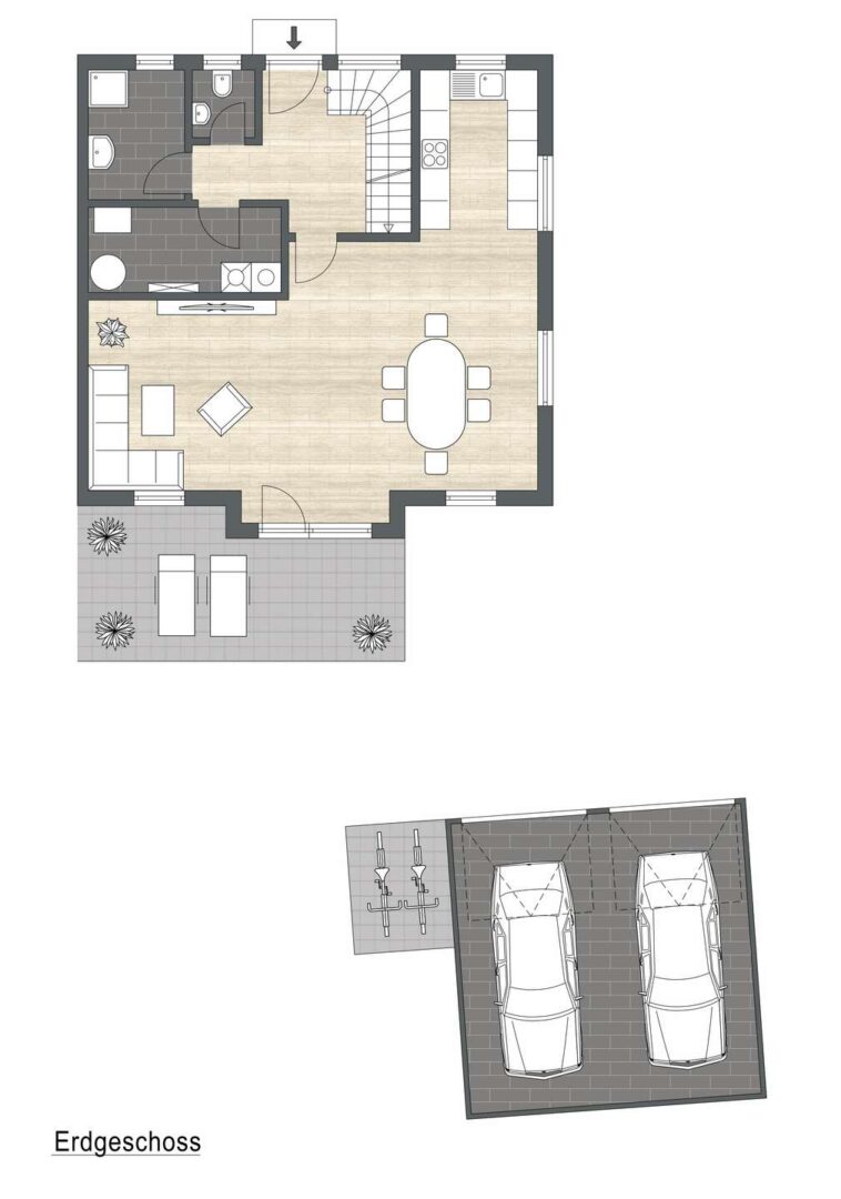
- **Garage:** Für Ihre Fahrzeuge steht eine geräumige Garage mit 2 Stellplätzen zur Verfügung
- **Küche:** Eine hochwertige Einbauküche ist bereits im Preis enthalten, im ersten Obergeschoss sind bereits Anschlüsse für eine weitere Küche vorbereitet.
Das Haus ist lichtdurchflutet und bietet eine angenehme Atmosphäre für gemütliche Stunden mit der Familie. Genießen Sie die vielfältigen Nutzungsmöglichkeiten der Räume und die durchdachte Raumaufteilung. Im Obergeschoss sind bereits Anschlüsse (Wasser und Abwasser) für eine Küche vorbereitet.
Der großzügige Garten und der Wintergarten lädt zum Entspannen und Spielen ein und bietet ausreichend Platz für individuelle Gestaltungsmöglichkeiten.
In der Nähe befinden sich Einkaufsmöglichkeiten, Schulen und öffentlichen Verkehrsanbindungen, dieses Haus ist der perfekte Ort für Familien und Paare, die das Besondere suchen.
Zögern Sie nicht und vereinbaren Sie noch heute einen Besichtigungstermin! Lassen Sie sich von diesem traumhaften Einfamilienhaus begeistern und erleben Sie die Vorzüge des unbeschwerten Wohnens in Westerheim.


